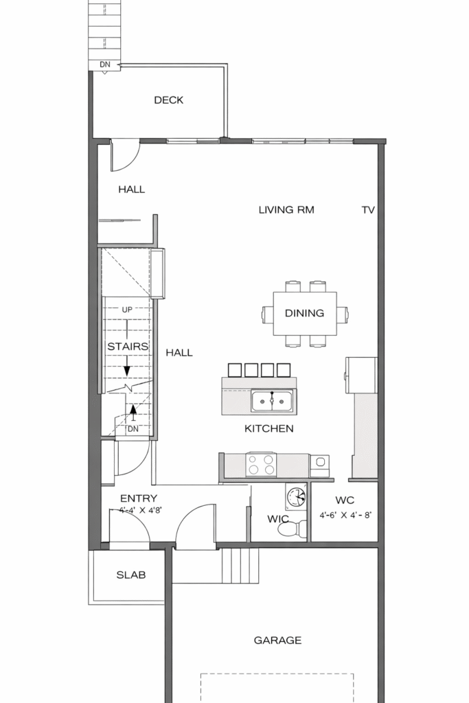
Description

This well-designed 1,653 sq. ft. two-storey side-by-side home features a front-attached garage and a smart, functional layout ideal for modern living. Offering 3 bedrooms and 2.5 bathrooms, the home includes a spacious primary suite, well-sized secondary bedrooms, and open-concept main-floor living perfect for families or professionals. Conveniently located close to the University of Manitoba, shopping, transit, schools, and everyday amenities, this property delivers comfort, convenience, and excellent long-term value in a sought-after location.

Total Sq Ft 1653 sq. ft.
Bedrooms 3
Washrooms 2.5

Floor Plans